
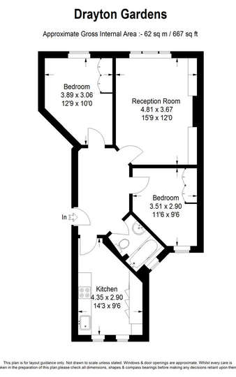
An especially bright two-bedroom apartment situated on the 4th floor (with lift) in this period mansion block. The accommodation comprises a wonderfully light and spacious reception room, generous eat-in kitchen, two double bedrooms and bathroom. New wood flooring throughout and plenty of built-in storage. Drayton Gardens is a sought-after residential address, close to the Fulham Road and all its amenities and shops. South Kensington Station is only minutes away.
Features

Susan Metcalfe Residential © 2026 Privacy Policy | Terms & Conditions | Landlord Fees | Info for Tenants
Susan Metcalfe Residential is a trading name of Susan Metcalfe Limited which is registered in England & Wales under registered company number: 03302496, registered office address: 10 Hollywood Road, Chelsea, London SW10 9HY