
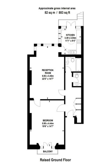
A spectacular one bedroom apartment on the raised ground floor in the ultra-chic part of South Kensington in Thurloe Street with its imposing and distinctive period white fronted houses. The interior-designed apartment enjoys high ceilings and high-end specification finishes and has retained many elegant original features such as the exquisite cornicing and marble fireplace in the reception room. The conservatory-style kitchen at the rear overlooks beautiful private gardens.
Features

Susan Metcalfe Residential © 2026 Privacy Policy | Terms & Conditions | Landlord Fees | Info for Tenants
Susan Metcalfe Residential is a trading name of Susan Metcalfe Limited which is registered in England & Wales under registered company number: 03302496, registered office address: 10 Hollywood Road, Chelsea, London SW10 9HY