£1,275,000
2 bedroom flat

for sale

Beautiful 2-Bedroom Garden Flat

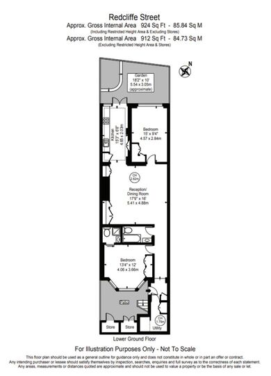
An impressive, spacious and bright 2-bedroom apartment with garden and patio presented in an immaculate condition with high-end finishes: beautiful herringbone light wood flooring throughout, integrated ceiling lights, marble bathrooms with brushed copper details and more. The generous modern conservatory-style kitchen leads to a private secluded garden. In addition to high ceilings, there is plenty of built-in storage and a separate utility room. Situated in Redcliffe Street, a quiet pretty cherry-tree lined residential street close and equally distant from all the shops cafes and restaurants of both the Old Brompton Road and the Fulham Road. There are good transport options with Earls Court underground station close by.       


Features
  • Private entrance
  • Entrance hall
  • Reception room
  • Fully fitted kitchen
  • Two double bedrooms
  • Family bathroom
  • En-suite shower room
  • Utility room
  • Patio
  • Bedrooms: 2
  • Bathrooms: 2
  • Surface: 924 sq ft
  • Tenure: Leasehold plus share of Freehold
  • Outdoor Space: Garden
  • Parking: Residents Permit
  • Council Tax: Council Tax Band: E (RBKC)